Heb's Rruga B
The love for cafes, restaurants, bars and practices to spend a lot of time in our favorite places is one of our characteristics.
The love for cafes, restaurants, bars and practices to spend a lot of time in our favorite places is one of our characteristics. Our culture enjoys good food and coffee especially with good company while eating and drinking, it is also worth asking that we also eat fast food slowly.

One of the strongest points we wanted to pay attention to was the comfort, the special look and the feeling “at home”.
Glass blocks have been used in cases where in the past they needed light and not views … mostly secondary places like wc, stairwells, etc., while we have given them added value by showing that the glass bones do wonders. One of the reasons we used glass blocks is because of the depth of the strip, to create the same feeling throughout the strip and painting the wall behind the yellow glass blocks. An environment with glass blocks results in happiness and positivity where this place will always look like spring.

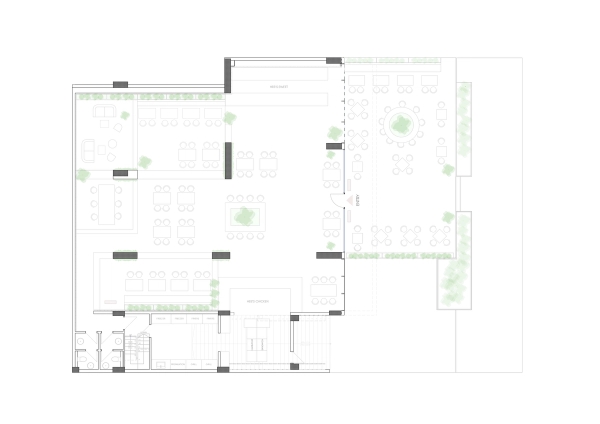
Among the other wonderful qualities is the greenery, which in itself creates a connection between the interior and exterior space, as well as illuminates the entire design making it comfortable and natural. It creates a connection with nature and participates in a house-like feeling as the interiors of many houses have their fair share of plants scattered throughout the rooms. Moreover, the green stars are two olives which are placed in focus, as the laying is positioned around them.

Light and metallic sheets perforated from the ceiling create a dynamic play of light and shade and add charm to the space during daylight hours as well as late evenings. Hebs has also found support in artistic works which are scattered in space by the artist Fitore Berisha.

It was crucial for us to give a new gastronomic brand a great identity, which would automatically set it apart from the rest.
Now restaurants and bars have been moved from spaces where man simply goes to eat, to creative and beautiful spaces, where the design of such areas attracts visitors who in addition to eating delicious food, also hit a pose or two!
Project Images














